+7 937 423-14-23

Барский

Барский

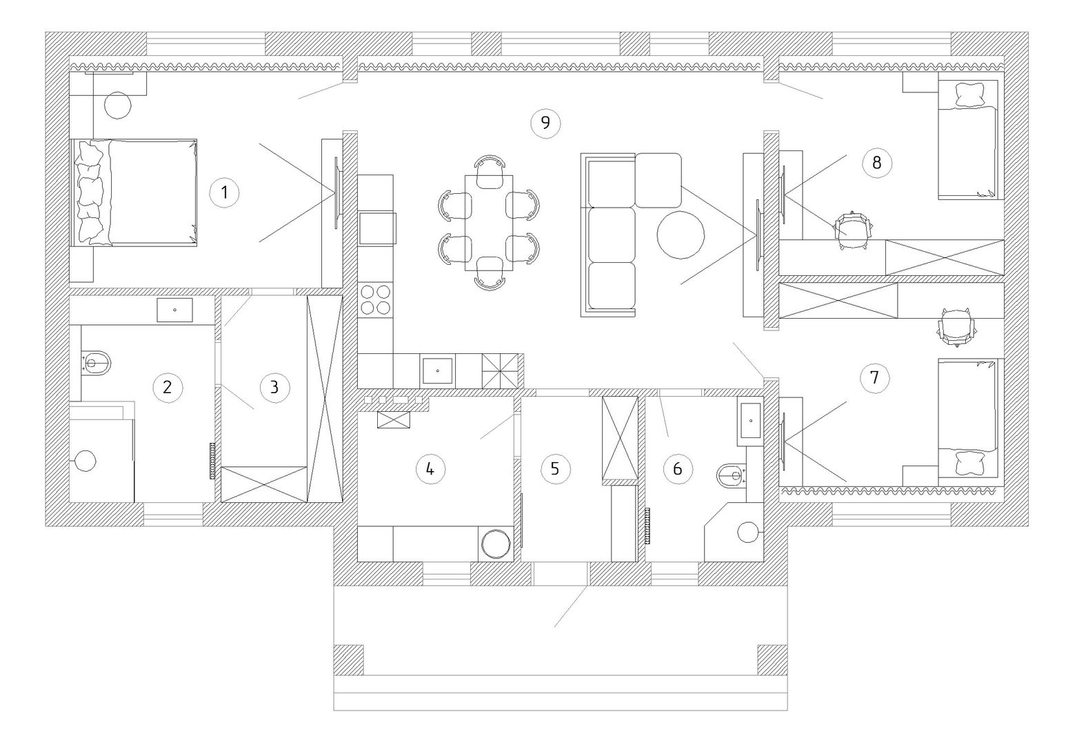
Площадь застройки – 161,8 кв.м.

Кадастровая площадь дома – 125,2 кв.м.

Общеполезная площадь дома – 118,1 кв.м.

Другие варианты домов

КОНТАКТЫ

Часы работы:
Пн.–Пт. с 9:00 до 18:00
Сб. и Вс. — выходные дни

г. Кузнецк ул. Строителей 87
Компания застройщик ООО СК “Ника”
Инн 5837066119

Вы не можете скопировать содержимое этой страницы

Звоните +7(937)-423-14-23

ОСТАВЬТЕ КОНТАКТЫ

Менеджер перезвонит вам в ближайшее время

Нажимая кнопку "Отправить" Вы даёте свое согласие на обработку введенной персональной информации